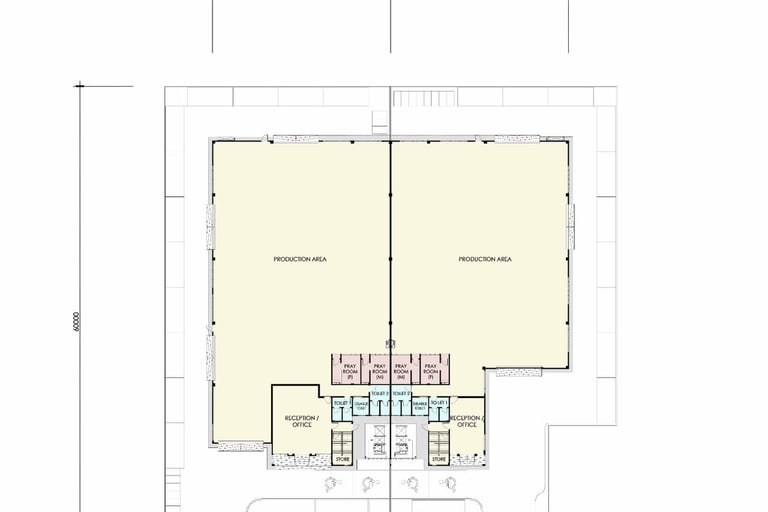
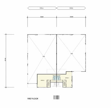
Senai Industrial Park @ Senai Johor
Located in Senai, the brand-new semi-detached factory and industrial land can meet your business needs regardless of your scale. With land areas ranging from 17,921 square feet to 26,920 square feet and building areas from 10,403 square feet to 12,240 square feet, it offers flexible options.
⚡️ Stable Power Supply: The factory comes with a stable power supply of up to 300 amps, ensuring smooth operation of your production equipment without limitations.
🧱 Strong Ground Bearing Capacity: With a ground bearing capacity of 20kn/m2, it can accommodate various heavy-duty equipment and machinery, ensuring stability and safety in the production environment.


Get in touch
Follow Us
© 2025 LS Project Group. All rights reserved.





